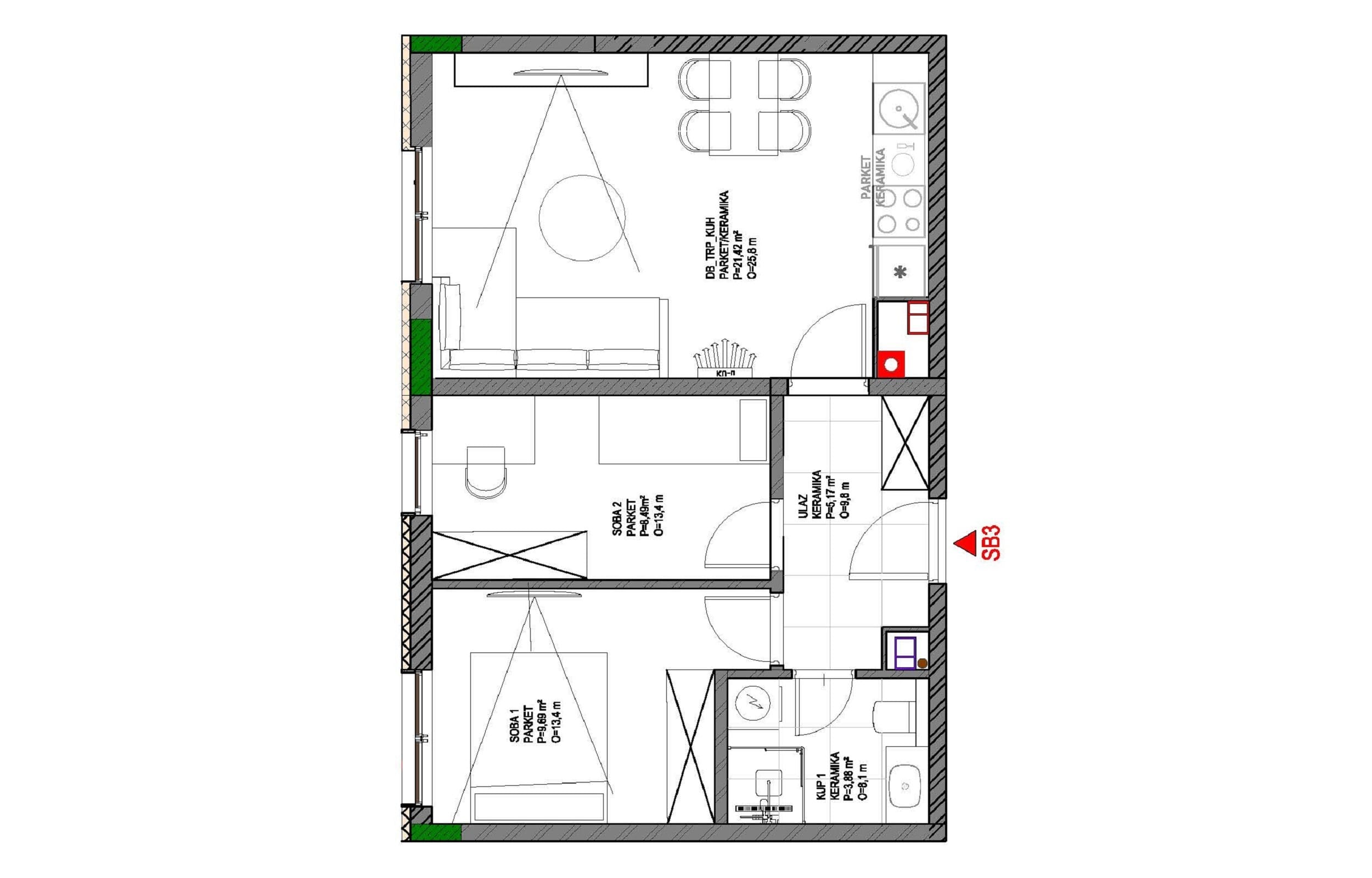
Stan B3

1. Dnevni boravak, trpezarija i kuhinja: 21,42 m2

2. Soba: 9,69 m2

3. Ulaz: 5,09 m2

4. Kupatilo: 3,88 m2

5. Soba 2: 8,49 m2

Prostorija: 5

Ukupna kvadratura: 48,57 m2

Sprat: 12

Lamela: B

Pošaljite upit

Prodaja stanova +387 61 990 099

Možete nas kontaktirati na Viber ili WhatsApp

Email: prodaja@cestotehnikinvest.ba

Pošaljite nam email i odgovoriti ćemo u najkraćem roku

Go To Top